7 minutes read See on map

The agora at Amathus stands as one of the most important marketplace ruins in Cyprus. This ancient public square served as the commercial and political heart of a city that thrived for over two thousand years. Located in the lower town of what was once a major Mediterranean trading hub, the agora reveals how Romans organized their public spaces and conducted daily business in this eastern corner of their empire.

wikimedia-org

Historical Background

Amathus was founded around 1100 BC and grew into one of the ancient royal cities of Cyprus. The settlement sat on coastal cliffs about 11 kilometers east of modern Limassol, positioned where a natural harbor allowed ships to dock safely. This strategic location helped Amathus become a wealthy trading center. The city exported grain and sheep to Greek merchants and profited from rich copper mines in the surrounding hills.

pixabay-com

The city maintained strong connections with Phoenician culture and resisted joining several rebellions against Persian rule. When Onesilos of Salamis led a Greek revolt against Persia in 500-494 BC, Amathus refused to participate. After the revolt failed, the Amathusians captured and executed Onesilos. According to the historian Herodotus, they cut off his head and hung it above their city gates, where bees later built a honeycomb inside the skull.

Under Roman control, Amathus became the capital of one of four administrative districts on Cyprus. The city was so significant that Romans used the term Amathusia as a synonym for Cypriot. This importance came partly from its religious status. The city housed the second most important sanctuary of Aphrodite in Cyprus, after Paphos. The temple facilities attracted worshippers from across the Mediterranean world.

The Roman Market Square Layout

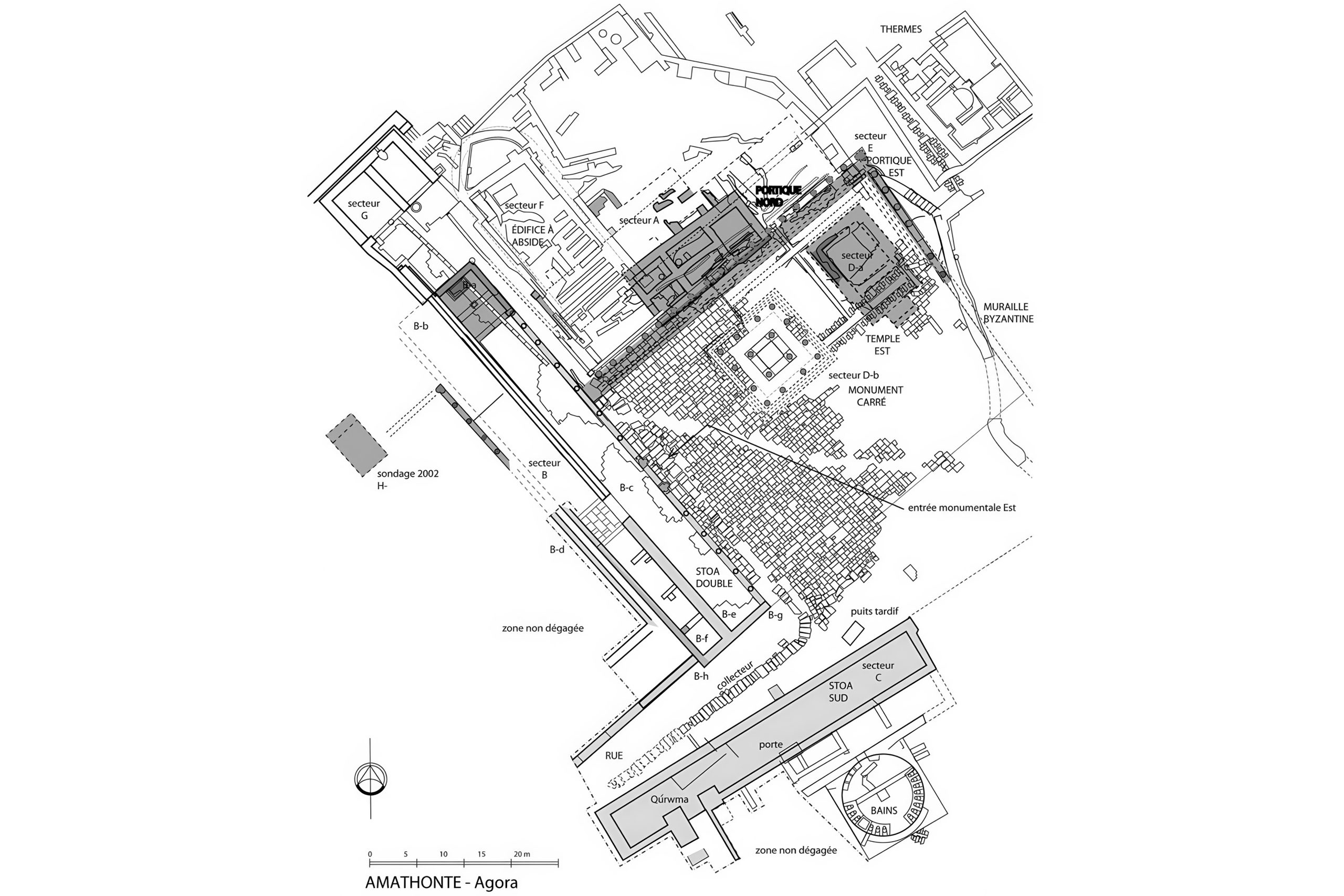
During the Roman period, builders organized the agora around a large central courtyard paved with limestone slabs. This open square provided space for merchants to set up stalls, citizens to gather for announcements, and politicians to address crowds. The design followed typical Roman town planning, with the main street running along one side of the square.

gemini-google-com

Three covered walkways called porticos enclosed the other three sides of the courtyard. These roofed colonnades protected people from sun and rain while they conducted business or socialized. The west portico featured thirteen Doric columns that opened onto the central court. Marble columns decorated with spiral carvings added visual appeal to the marketplace. The craftsmanship of these spirals shows skilled stonework, with each groove carved symmetrically into the marble.

The west portico ended at its northern edge with a fountain, known as a nymphaeum in Roman architecture. This ornamental fountain provided fresh water for visitors and added a pleasant sound to the busy marketplace. Behind the fountain, workers later constructed a cistern to store additional water. These water features were essential in the Mediterranean climate, where summer temperatures could be extreme.

Public Buildings Around the Square

The north portico, though now badly damaged, once fronted important administrative and religious structures. These buildings handled the governmental functions necessary for running a major city. Tax collection, legal proceedings, and official records all required dedicated spaces. Religious ceremonies connected to civic life may have also taken place in these structures, as Roman cities typically combined sacred and secular authority in their public buildings.

cyprusisland-net

Archaeological excavations have revealed foundations of houses and shops excavated along the slopes near the agora. These structures show how commercial and residential areas intermingled in ancient cities. Merchants often lived above or behind their shops, keeping their businesses close at hand. The proximity of homes to the marketplace made daily shopping convenient for residents.

Drainage channels ran through the area to handle rainwater and prevent flooding. The Romans were experts at managing water in their cities. Reservoirs stored water during dry periods, while carefully engineered channels carried excess water away during storms. These systems show the practical engineering knowledge that Romans applied even in distant provinces like Cyprus.

The Public Baths Next Door

Just south of the agora, a public bathhouse served the community. This bath complex, called a balaneion in Greek, consisted of a circular main chamber with several attached rooms. Emperor Hadrian commissioned improvements to these baths in the 2nd century AD as part of broader civic upgrades across the empire. The structure demonstrates typical Roman bathing practices adapted to a Mediterranean setting.

worldhistory-org

The bath complex included portions from the earlier Hellenistic period, along with parts of the west portico of the agora. These older sections represent the earliest evidence of organized human activity in this part of the city. The Romans later expanded and improved these facilities, showing continuity between Greek and Roman urban planning in Cyprus.

Modern Archaeological Work

In the 1870s, Luigi Palma di Cesnola excavated the necropolis of Amathus. He sent many objects to the Metropolitan Museum of Art in New York, while others went to the British Museum in London. These early excavations were less careful than modern archaeological methods, but they brought Amathus to scholarly attention and preserved artifacts that might otherwise have been lost.

Joint Cypriot-French excavations began in 1980 and continue today. These modern digs have systematically uncovered the acropolis, the Temple of Aphrodite, the agora, city walls, the basilica, and the ancient port. Archaeologists preserve finds at both the Cyprus Museum in Nicosia and the Limassol District Archaeological Museum, making them accessible to researchers and the public.

One spectacular discovery was a massive limestone vessel on the acropolis, dating from the 6th century BC. This enormous vase stands 1.85 meters tall and weighs 14 tons. Carved from a single piece of stone, it features four curved handles decorated with bull motifs. A similar vessel was taken to the Louvre in Paris in 1867. Today, a modern replica stands at the site while the original remains in France.

Visiting the Ruins Today

The archaeological site is open to visitors year-round. A small entrance fee grants access to the lower town, where the agora and baths are located. The acropolis on the hill above can be visited for free. Information stands and marked trails help visitors understand what they are seeing. The site covers a large area, so visitors should plan to spend at least two hours exploring.

shutterstock-com

The limestone-paved square of the agora remains clearly visible, along with bases where marble columns once stood. The spiral decorations on some surviving columns show the artistic skill of ancient craftsmen. Visitors can trace the outline of the porticos and identify where the fountain once stood. The bath complex to the south reveals its circular layout and the different rooms where Romans once bathed.

From the acropolis, panoramic views extend across the Mediterranean Sea and the surrounding countryside. This elevated position shows why ancient builders chose this spot for their city. The natural harbor below made trade possible, while the hilltop provided defensive advantages. Standing among the ruins, it takes only modest imagination to picture the bustling marketplace that once occupied this space.

The Legacy of the Amathus Marketplace

The agora at Amathus represents more than just an ancient marketplace. It shows how Romans adapted their urban planning to local conditions while maintaining their characteristic organization and engineering standards. The stone-paved square with its surrounding porticos created a functional space for commerce and politics. The nearby baths provided essential social facilities. Together, these structures formed the public core of a successful Mediterranean city.

allaboutlimassol-com

What makes the Amathus agora particularly valuable is how it preserves both Hellenistic and Roman construction phases. The earliest parts of the bath and west portico date to the Hellenistic period, while later Roman improvements show how cities evolved over centuries. This layered history helps archaeologists understand the transition from Greek to Roman control in Cyprus.

Today, the ruins continue to reveal information about ancient life. Each excavation season brings new discoveries. The agora stands as a testament to the importance of public spaces in ancient cities, where commercial transactions, political decisions, and social connections all took place in the same central square. For modern visitors, walking through this archaeological site offers a direct connection to the daily activities of people who lived and worked here more than two thousand years ago.

Discover more about the fascinating edges of Cyprus

Timeless Stone Columns Over Cyprus Blue Waters

Timeless Stone Columns Over Cyprus Blue Waters

Cyprus coastal monuments showcase classical architecture where ancient stone columns rise against Mediterranean horizons, creating dramatic vistas that combine archaeological significance with natural beauty. The most impressive examples include the Greco-Roman theatre at Kourion perched on coastal cliffs 70 meters above sea level, the Sanctuary of Apollo Hylates with its partially restored temple columns, and the Tombs of the Kings in Paphos featuring underground burial chambers decorated with Doric pillars. These structures date primarily from Hellenistic and Roman periods between the 4th century BC and 4th century AD, when Cyprus prospered under successive empires. The architectural elements follow classical Greek orders with refinements from Roman building techniques, creating monuments that have withstood earthquakes, invasions, and two millennia of Mediterranean weather. The coastal positioning of these sites provided strategic advantages for ancient communities while offering modern visitors spectacular combinations of archaeological ruins and sweeping sea views that define Cyprus as a destination where history meets landscape. Kourion's Clifftop Theatre and Coastal Views The ancient theatre at Kourion was built in the 2nd century BC and extended during the 2nd century AD to accommodate 3,500 spectators. The structure occupies the most southern part of the city, positioned on dramatic coastal cliffs that provided both practical acoustics and majestic views toward the Mediterranean. The semicircular seating arrangement carved from limestone faces the sea,…

Read more
Cyprus Island Identity as a Cultural Crossroads

Cyprus Island Identity as a Cultural Crossroads

Cyprus stands at a cultural, linguistic, and historic crossroads between Europe and Asia. Situated at the crossroads of Europe, Asia, and Africa, the island has been shaped by Greeks, Romans, Byzantines, Venetians, Ottomans, and the British. This strategic location has resulted in Cyprus being contested and occupied by several empires throughout history, including the Assyrians, Egyptians, Persians, and many others. As early as 370 BC, the island was inhabited and considered to be the crossroads between the east and west. The eastern Mediterranean island of Cyprus has long been a cultural thoroughfare. It was the starting, stopping, and midway hot spot for many ancient seafaring cultures including the Myceneans, the Minoans, the Phoenicians, the Greeks, and the Romans. The Bronze Age Trading Hub Cyprus experienced significant social and economic transformations during the Late Bronze Age, roughly from 1700 to 1100 BC. The island became more connected to the wider Mediterranean world driven by the trade in copper extracted from the Troodos Mountains, which stimulated the development of urbanized settlements across the island. At this time Cyprus was ruled by kings who corresponded with the leaders of other Mediterranean states like the pharaohs of the New Kingdom of Egypt, as documented in the Amarna letters. The first recorded name of a Cypriot king is Kushmeshusha, as appears on letters sent to…

Read more
Idalion Sanctuary Complex

Idalion Sanctuary Complex

Near the modern village of Dali, 21 kilometers from Nicosia, the ruins of Idalion spread across two hills overlooking the fertile Yialias River valley. This was one of Cyprus’s ten powerful city-kingdoms. It grew wealthy from copper mining and was listed first among Cypriot kingdoms in ancient Assyrian records. Idalion thrived from the Late Bronze Age, around 1200 BC, until it was absorbed by the Phoenician kingdom of Kition in the mid-5th century BC. The city continued through the Hellenistic and Roman periods, though it lost much of its former importance. The city had two acropolises and a lower town. The western acropolis, called Ambelleri, had a fortified palace and the Temple of Athena. The eastern acropolis, Moutti tou Arvili, was the sacred center, with temples dedicated to Aphrodite, Apollo, and other gods. The lower town lay between the hills and was fortified during the 5th century BC. According to legend, Adonis, the lover of Aphrodite, was killed here by the jealous god Ares, giving the area special significance in Greek mythology. Historical Background Idalion’s prosperity came from its strategic location, just 10 kilometers from the copper-rich foothills of the Troodos Mountains. The city stood on the south bank of the Yialias River, providing a natural route to the eastern coast ports. This position allowed Idalion to control both the…

Read more